
Entre edificios fríos y desprendidos, la torre provee de espacios generados con una elegancia de inspiración natural, provenientes a su vez de un proceso algorítmico de diseño que vincula al proyecto visual y lógicamente con su contexto. Dicho proceso surge de parámetros que abarcan desde la radiación solar y análisis de vistas, hasta el programa y la privacidad requerida por los tres tipos de departamentos disponibles; concentrando el diseño de la torre en un algoritmo, que le permite responder dinámicamente a sus usuarios y entorno.
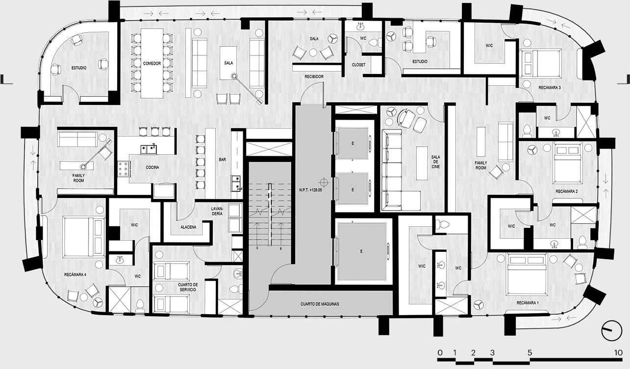
Al interior de la torre, los espacios de las tres tipologías de departamentos están diseñados para aprovechar las privilegiadas vistas a la vez que se enlazan fluidamente las diferentes experiencias del hogar. Más aún, Torre Hedera también ofrece varias amenidades: gimnasio, estudio de yoga, estudio de spinning, terrazas e impresionantes albercas en la azotea con vistas panorámicas de la ciudad.








